Banner 1 0825Banner 2 0825Banner_Frühling_2025_3Kühne Mohnfelder 2025 2Banner_Frühling_2025_4Banner 3 0825
  • RSS-Feed
 

Beteiligung der Bürgerinnen und Bürger

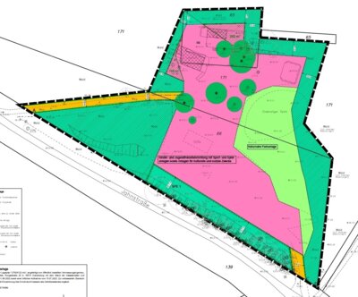
Bürgerbeteiligung zum Bebauungsplan „Am Grünen Jugend-Hain“ sowie zur 8. Änderung des FNP Flächennutzungsplanes Löwenberger Land, Ortsteil Löwenberg

Werte Einwohnerinnen und Einwohner,

 

die Gemeindevertretung der Gemeinde Löwenberger Land hat auf öffentlicher Sitzung am 24.09.2024 den Entwurf des Bebauungsplanes „Am Grünen Jugend-Hain“ OT Löwenberg in der Planfassung von Juli 2024 gebilligt und die Öffentlichkeits- und Trägerbeteiligung beschlossen (Beschluss Nr. 61/24). 

 

Gemäß § 4a Abs. 3 BauGB werden in der Zeit vom 13.11. bis 16.12.2024 folgende Unterlagen im Internet veröffentlicht und auf folgenden Internetseiten zugänglich gemacht: 

 

http://bauleitplanung.brandenburg.de

 

Zusätzlich zur Internetveröffentlichung werden die Unterlagen in der Gemeindeverwaltung öffentlich ausgelegt. 

 

Näheres entnehmen Sie bitte der Bekanntmachung. 

 

Weitergehende Informationen finden Sie hier.

 


 

Die Gemeindevertretung der Gemeinde Löwenberger Land hat auf öffentlicher Sitzung am 24.09.2024 den Entwurf der 8. Planänderung des Flächennutzungsplanes Löwenberger Land, OT Löwenberg in der Planfassung von Juli 2024 gebilligt und die Öffentlichkeits- und Trägerbeteiligung beschlossen (Beschluss Nr. 62/24). 

 

Gemäß § 4a Abs. 3 BauGB werden in der Zeit vom 13.11. bis 16.12.2024 folgende Unterlagen im Internet veröffentlicht und auf folgenden Internetseiten zugänglich gemacht: 

 

http://bauleitplanung.brandenburg.de

 

Zusätzlich zur Internetveröffentlichung werden die Unterlagen in der Gemeindeverwaltung öffentlich ausgelegt. 

 

Näheres entnehmen Sie bitte der Bekanntmachung. 

 

Weitergehende Informationen finden Sie hier.

 

 

 

 

 

 

 

Quelle: Gemeinde Löwenberger Land

 

 

 

 

Lucas Vogel

Öffentlichkeitsarbeit

Weitere Informationen

Mehr Meldungen finden Sie [hier] im Archiv.


!HINWEIS! Termine beim Einwohnermeldeamt sind bitte vorab zu buchen! Entweder telefonisch unter: 033094 698-35 oder 033094 698-49 oder über unseren Online-Terminkalender!

 

Sprechzeiten

Dienstag 9-12 & 13-18 Uhr

Mittwoch 9-12 & 13-17 Uhr

T: 033094 698-0

F: 033094 698-88

E:


Nachricht schreiben